Газораспределительная станция (GS-GDS-10000)
(Код товара: 147-13-368)
| Менеджер: | Владислав Викторович Боровик |
| Многоканальный тел./факс: | |
| Харьков: | (доб. 147) |
| Киевстар: | (доб. 147) |
| МТС: | (доб. 147) |
| Лайф: | (доб. 147) |
| E-mail: | |
Описание

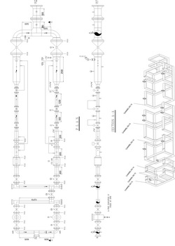
|
ГРС GS-GDS-10000 |
||||
|
№ |
Диаметр |
Наименование |
Класс давления ANSI |
|
|
1 |
50 |
Осевой регулятор давления газа |
600 |
|
|
2 |
50 |
Осевой регулятор давления газа |
600 |
|
|
3 |
50 |
Осевой регулятор давления газа |
300 |
|
|
4 |
25 * 50 |
ПСК |
150 |
|
|
5 |
80 |
Фильтр |
600 |
|
|
6 |
80 |
Предохранительный запорный клапан |
600 |
|
|
7 |
80 |
Турбинный счетчик газа G160 с корректором (ACTARIS) |
600 |
|
|
8 |
25 |
Пробковый кран |
150 |
|
|
9 |
80 |
Пробковый кран |
600 |
|
|
10 |
80 |
Шаровой кран |
600 |
|
|
11 |
80 |
Шаровой кран |
150 |
|
|
Заметки |
||||
|
Все ед. измерения приведены в мм. |
||||
|
100% Радиография |
||||
|
Техническая информация |
||||
|
Входное давление |
6,4 МПа |
|||
|
Выходное давление |
0,6 МПа |
|||
|
Максимальная пропускная способность |
10000 нм3/ч |
|||
|
Входной диаметр |
Ду 80 |
|||
|
Выходной диаметр |
Ду 200 |
|||