Газораспределительная станция (GS-GDS-120000)
(Код товара: 147-13-371)
| Менеджер: | Владислав Викторович Боровик |
| Многоканальный тел./факс: | |
| Харьков: | (доб. 147) |
| Киевстар: | (доб. 147) |
| МТС: | (доб. 147) |
| Лайф: | (доб. 147) |
| E-mail: | |

|
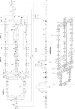
Техническая информация ГРС GS-GDS-120000 |
||||||
|
№ |
Диаметр Ду |
Наименование |
Класс давления ANSI |
Вес кг. |
||
|
1 |
400 |
Пробковый кран |
300 |
890 |
||
|
2 |
400 |
Вертикальный пылевлагоотделитель |
300 |
3000 |
||
|
3 |
100 |
Пробковый кран |
300 |
33 |
||
|
4 |
300 |
Пробковый кран |
300 |
372 |
||
|
5 |
300 |
Фильтр |
300 |
2000 |
||
|
6 |
100 |
Пробковый кран |
300 |
33 |
||
|
7 |
300 |
Турбинный счетчик газа G 4000 |
300 |
350 |
||
|
8 |
300 |
ПКН |
300 |
300 |
||
|
9 |
200 |
Осевой регулятор давления газа |
300 |
54 |
||
|
10 |
100 * 150 |
ПСК |
150 |
80 |
||
|
11 |
150 |
Пробковый кран |
150 |
110 |
||
|
12 |
500 |
Шаровой кран |
150 |
1918 |
||
|
13 |
750 |
Шаровой кран |
150 |
4300 |
||
|
14 |
400 |
Изомуфта |
300 |
191 |
||
|
15 |
750 |
Изомуфта |
150 |
850 |
||
|
16 |
25 |
Пробковый кран |
150 |
5 |
||
|
Заметки |
||||||
|
Все ед. измерения приведены в мм. |
||||||
|
100% Радиография |
||||||
|
Высота узлов от земли 1000 - 1500 мм |
||||||
|
Техническая информация |
||||||
|
Входное давление |
2,5 МПа |
|||||
|
Рабочее давление |
1,2 МПа |
|||||
|
Выходное давление |
0,3 МПа |
|||||
|
Максимальная пропускная способность |
120 000 нм3/ч |
|||||
|
Входной диаметр |
Ду 400 |
|||||
|
Выходной диаметр |
Ду 750 |
|||||
|
Вес |
||||||
|
Составная часть (PART) |
Вес составной части с упорами (кг) |
|||||
|
A |
30715 |
|||||
|
B |
21445 |
|||||
|
C |
11303 |
|||||
|
D |
8535 |
|||||
|
Общий вес |
71998 |
|||||
Увеличить изображение